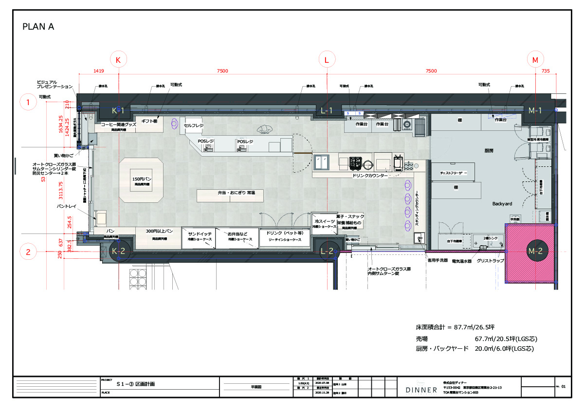
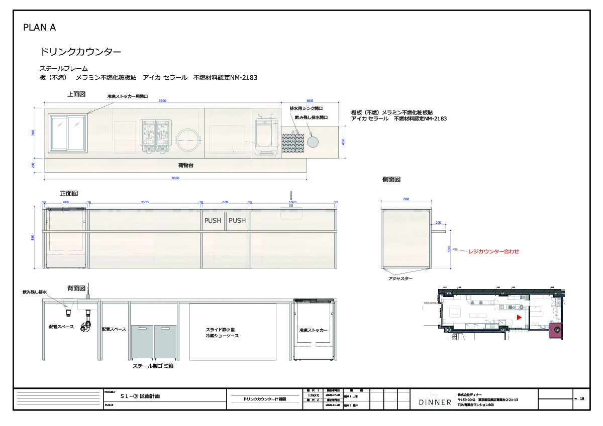
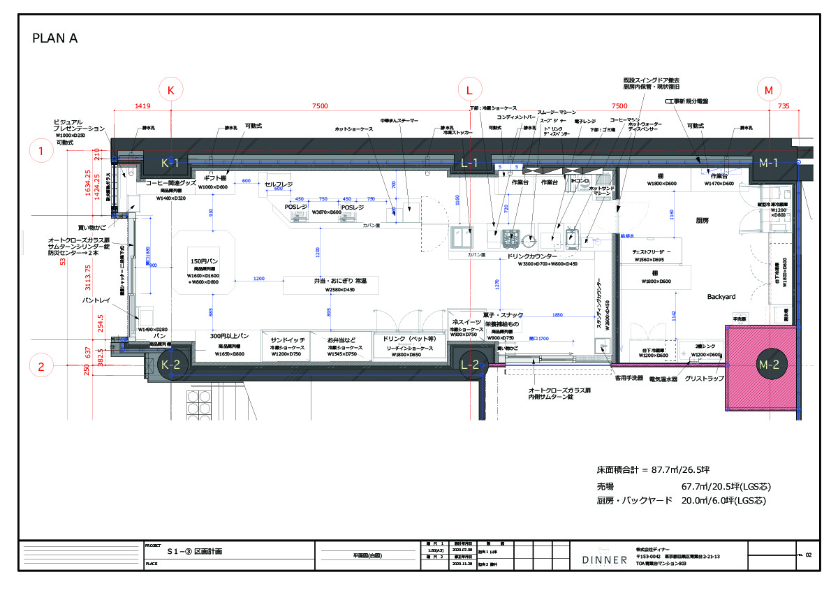
内装設計

グラフィックデザイン

ウェブサイト

https://hamapla.com/

Copyright© DINNER All rights Reserved

replay
戻る